CAD plan of sanitary toilet area details in autocad software file
Description
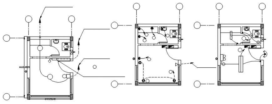
CAD plan of sanitary toilet area details in autocad software file that shows sanitary toilet area details along with sanitary blocks details of washbasin watercloset with door and ventilation details also included in drawings.
File Type:
DWG
File Size:
—
Category::
Dwg Cad Blocks
Sub Category::
Sanitary CAD Blocks And Model
type:
Gold
Uploaded by:
Eiz
Luna

